Планы небольших домов с мансардой. Уютный дом с мансардой: проекты, фото интерьеров и полезные советы
Если встает необходимость расширить дом, то застройщики, как правило, рассматривают два варианта.
Первый - это пристройки дополнительных помещений. Но, вынесенные за периметр несущих стен, они могут служить только как хозяйственные или подсобные.
Второй вариант более приемлем. Речь идет о дополнительных квадратных метрах за счет перестройки второго этажа. В этом случае проект дома с мансардой - самый оптимальный вариант. Утеплив крышу, можно получить дополнительные полноценные жилые и подсобные комнаты.
Насколько же он все-таки функционален и экономически оправдан? Попытаемся беспристрастно рассмотреть все достоинства и недостатки.
Проекты домов с мансардой: "за"
- Такое жилье позволит сэкономить на площади застройки. То есть дом с мансардой логично строить на небольшом земельном участке.
- В вопросе рационального использования общей площади здания, проекты домов с мансардным помещением выигрывает по сравнению с одноэтажными и даже двухэтажными строениями, в которых чердачное помещение не используется рационально.
- Второй этаж дома и мансарда отличаются с точки зрения финансовых затрат. В классическом варианте мансарда - вариант более экономичный. Если для обустройства полноценного второго этажа понадобятся кирпич, бетон, брус, утеплитель, материалы для наружной отделки, то оборудование мансарды ограничивается стропилами, утеплителем и кровельным материалом. А если застройщик планирует теплый чердак, то добавляются расходы на утепление. Только в этом случае можно получить и жилой этаж, и крышу. Поэтому делаем вывод, что стоимость 1 м2 полезной площади дома с мансардой существенно ниже по сравнению с другими проектами.
- Кроме того, теплый воздух из нижних помещений поднимается вверх, что делает обогрев мансардного этажа меньше затратным. Можно уверенно говорить о снижении расхода топлива и электроэнергии, а следовательно, об экономии при эксплуатации уже готового здания.
Проекты домов с мансардой: "против"
- Некоторые специалисты утверждают, что главный недостаток проектов домов с мансардой - их плохая освещенность. Мы уверены, что этот минус условный. Решить проблему можно очень просто за счет мансардных окон. К тому же, через них света в помещение поступает в значительно больше, чем через вертикальны окна. Конечно, мансардные стеклопакеты - удовольствие не из дешевых. Но на сэкономленные при строительстве средства, можно позволить себе комфортную организацию повседневной жизни. Кроме того, всегда есть возможность спроектировать окна и, даже, балконы во фронтонах.
- Второй недостаток проектов домов с мансардой тоже можно рассматривать, как условный. Считается, что скошенные потолки вызывают у жильцов дома подавленность. Но грамотная организация и оформление помещений, легко устраняют это противоречие.
Делаем выводы из вышесказанного
Возведение собственного дома – непростая задача. Должно быть продуманно все начиная от проекта и заканчивая гвоздями для внутренней отделки. Важно на первом этапе выбрать подходящий план и определиться с количеством этажей. Останавливая внимание , дополнительно монтируют цокольный этаж и пристраивают гараж, для увеличения функциональной площади. Чтобы увеличить жилое помещение, выбирают дом с мансардой, проекты, фото которых будут приведены ниже. Такие конструкции не требуют больших дополнительных материальных вложений, достаточно спланировать большую двускатную крышу.
Мансарда – это чердак, переделанный под жилое помещение. Его планируют на стадии разработки проекта: необходимо сконструировать крышу так, чтобы внутри было достаточно места для комнаты, а иногда и не для одной. Ниже приведены фото готовых домов с мансардным этажом:

Красиво, удобно и дополнительно сделана лоджия

Вариант современного загородного дома

Классический дачный вариант

Объединение дома и гаража под одной крышей
В классических проектах домов с мансардой на фото видно, что она занимает весь этаж, однако, есть варианты, частичного занятия крыши. Вот несколько примеров:
Двухэтажная конструкция, где половина – мансардный этаж
Деревянная конструкция, где под жилое помещение отдана только часть крыши
Оригинальный проект: выведено несколько участков под комнаты
Коттедж в стиле Хай-Тек
Для воплощения в жизнь такой красоты готовятся проекты зданий. Причем в них обязательно включается несколько аспектов:
- Архитектурный раздел – отображение внешнего и задумки архитектора.
- Конструктивный – точные планы с размерами каждого этажа, крыши или цоколя.
- Подключение к коммуникациям . Подробно описаны схемы всех проводок электрики, и .
- Паспорт проекта – копия лицензии авторского права на разработку строения, фото фасадов и планы этажей.

Важно ! Заказывая готовый проект, убедитесь, что вся документация в порядке, ведь от этого зависит прочность и надежность всего дома.
Мансардный этаж активно используют не только в домах для постоянного проживания, но и возводя постройки на дачных участках, где на небольшой площади хочется увидеть комфортный коттедж.
Проекты дачных домов с мансардой: преимущества и недостатки
Обустроенное пространство под крышей для жизни или отдыха – хорошее решение не только для коттеджей, но и для дачных домиков. Обычно участки в кооперативах не отличаются большими размерами, а хочется еще и на место оставить.

Потребители останавливают внимание на небольших строениях с мансардой 6х6 или 9×9 м с . Этого достаточно для отдыха всей семьи, а добавив систему отопления не только в летний, но и в зимний период.
Использование мансардного этажа, заложенного в проект, дает владельцам строения сразу несколько преимуществ:
- увеличение жилой площади за счет обустройства мансарды;
- при правильном возведении в доме будет дольше сохраняться тепло за счет дополнительного помещения;
- общий вид домика выглядит лаконично и красиво;
- на мансардном этаже можно воплотить в жизнь интересные .

Однако у конструкций такого типа есть и отрицательные стороны:
- не все архитектурные дизайнерские задумки во внешнем облике дома можно воплотить с использованием мансарды;
- следует внимательно следить за правильностью крыши, чтобы на чердачном этаже было комфортно в любое время года;
- при больших осадках в зимний период может уменьшиться количество естественного освещения.
При соблюдении всех требований к строительству дополнительное жилое помещение будет комфортным, удобным и красивым. Вот некоторые проекты дачных домов с мансардой и :




Статья по теме:
В статье рассмотрим: проекты и цены, фото лучших моделей домов, как выбрать материал и тонкости возведения купольного строения, инструкцию по возведению нестандартного сооружения и другие полезные рекомендации.
Фото одноэтажных домов с мансардой: выбираем материал для строительства
Задумываясь о постройке собственного дома, стоит определиться не только с этажностью, наличием , мансарды, веранды и гаража, но и с материалами изготовления. Отвечая на вопрос, из чего лучше построить дом, стоит учитывать несколько моментов:
- Материальные затраты. Правильно подготовленная смета позволит сэкономить на строительстве. Так, при выборе облегченного материала для стен, можно сделать менее глубокий .

- Теплоизоляция. Если планируете постоянное проживание в доме, обращайте внимание на то выбирайте материал под климатические условия. На холодные стены потребуется большой слой , что невыгодно.
- Затраты на постройку. Общая стоимость исходит не только от количества материала, но и от затраченной рабочей силы и времени. Например, блочные конструкции намного быстрее собрать, чем делать кирпичную кладку.
- Внешняя и внутренняя отделка. Данный пункт также рассчитывается на стадии составления проекта. Декор продумывается заранее, чтобы на выходе получить строение пригодное для эксплуатации.

Среди материалов, которые используются для проектов одноэтажных домов с мансардой и гаражом, а также простых коттеджей выделяют:
- : срок службы от 100 до 150 лет, прекрасно держит форму и не поддается воздействию перепадов температуры;

- керамоблок – современный материал, дешевле первого варианта, но при этом не уступает по своим характеристикам;

- – толщина элемента 30÷40 см, имеет хороший показатель теплоизоляции;

- – натуральность и комфорт, но необходимость строго соблюдать технологию возведения дома и обработки материала;

- прекрасно подходит для простых дачных домиков, легко и быстро смонтировать, есть варианты из дерева или металла.

Чтобы легче было оценить итоговый вариант из каждого материала, вот несколько фотопримеров готовых строений с мансардой:
Кирпичный дом с мансардным этажом
Аккуратное жилье из керамоблока
Небольшой домик из газобетонных блоков
Дачный деревянный коттедж
Проекты домов с мансардой из пеноблоков: преимущество материала
По конструкции мансардная крыша может быть треугольной или многоугольной. По форме симметричной или нет, при этом занимать всю площадь крыши или только ее участок. Если хотите построить недорогой и , остановите выбор на пеноблоках.

Данный материал имеет ряд преимуществ:
- обладает огнеупорными свойствами и не подвержен образованию грибка и плесени;
- возвести стены просто и быстро;
- высокие показатели теплоизоляции, а значит, не потребуется дополнительных затрат на ;
- меньший расход трудозатрат, так как один блок довольно легкий и его можно поднять без специальной техники.
Выбирая материал для постройки, стоит учитывать и отрицательные моменты:
- необходим хороший слой ;
- фундамент должен быть жестким;
- кладка осуществляется с использованием усилений и компенсационных швов, что требует определенных знаний в строительстве;
- в климате с сильными морозами внешние стены надо утеплять пенополистиролом.
Вот несколько интересных фото проектов домов с мансардой из пеноблоков:




Выбираем проекты домов с мансардой: фото с чертежами
Если вы хотите заказать готовый проект дома с мансардой, учитывайте, что есть типовые и авторские варианты. Среди небольших типовых решений выделяют:
- постройку 6 на 6 ;
- 9×9 м;
- 10×10 м;
- 8 на 10 м.

Индивидуальные проекты разрабатываются под заказ и готовятся с учетом площади участка и ваших пожеланий к внешнему облику строения. Количество и расположение комнат также продумывается заранее, чтобы правильно распределить перекрытия и рассчитать глубину .
Вот несколько вариантов планировок в разных домах:




Дом с мансардой: планировка 6х6 м с фото
Самый небольшой и аккуратный домик. Такая конструкция впишется в участок любой площади, прекрасно подходит для дачи. В планировке дома 6 на 6 м с мансардой практически отсутствуют коридоры. Чаще всего размещают одну спальню, гостиную и кухню. «Чердачный» этаж обустраивают под детскую комнату или зону отдыха.

План дома с мансардой 6 на 6 м должен быть хорошо продуман, чтобы жить или проводить в нем лето было комфортно. Классический вариант, когда из прихожей сразу есть доступ к санузлу (его делают совмещенным для экономии пространства) и к . За спрятана спальня или кухня. Для увеличения гостиной ее можно совместить с местом для приготовления пищи, сделав .

Заказывая проект дачного дома 6×6 с мансардой, обращайте внимание на количество комнат, материал изготовления дома и площадь верхнего этажа. Если в кооперативе нет подключения к центральной канализации, то необязателен, так как его можно вынести на улицу и расположить в другом месте на участке. А также можно сделать кухню и одну большую комнату отдыха. Второй этаж отводят для сна.

Вот несколько интересных проектов домов с мансардой 6×6 м:




Для дачи оптимальными по соотношению цены и качества будут каркасные дома с мансардой 6×6, проекты и стоимость готовых конструкций представлены ниже:
| Наименование | Фото | Краткое описание | Стоимость, руб. | |
| Каркасный дом К-5 | ![]() | Жилая площадь | 36 м² | 405 000 |
| Общая | 45 м² | |||
| Сроки строительства | 2 недели | |||
| Толщина стен | 182 мм | |||
| Уплотнитель | 15 см | |||
| Внешняя отделка | Сухая вагонка | |||
| Одноэтажный дом в компании «Русская построечка» Проект – 1 | ![]() | Жилая площадь | 35 м² | 460 000 |
| Общая | 44 м² | |||
| Сроки строительства | 25 дней | |||
| Толщина стен | 20 см | |||
| Уплотнитель | 10 см | |||
| Внешняя отделка | Обрешетка из | |||
Дмитрий, г. Тула: «Заказал домик К-5 для дачи, построили быстро. Внутреннюю отделку пришлось дорабатывать, а в остальном прекрасный вариант».
Мария, г. Москва: «Заказала для дачи «Проект – 1» под ключ, построили быстро и качественно. Дополнительно просила сделать и внутреннюю отделку. Ребята работают хорошо и качественно».
В зависимости от метража, толщины стен, слоя и время на выполнение работы стоимость будет меняться. Чем тоньше стены, тем дешевле постройка. Можете посмотреть видео-обзор готового каркасного дома 6 на 6 м с внутренней и внешней отделкой:
Фото планировок дома 9 на 9 м с мансардой
Среди вариантов конструкций потребители отдают предпочтение , которые дешевле кирпича, но при этом обладают хорошими свойствами теплоизоляции, поэтому конструкции получаются недорогими.

Вариантов планировок с площадью 9 на 9 м уже больше. Можно сделать небольшой коридор, разделить пространство на 2 спальни и гостиную, выведя отдельно санузел и кухню. Вот несколько простых и комфортных моделей расстановок перегородок:




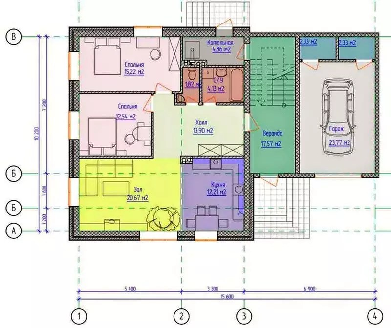
Интересен вариант планировки дома 8 на 10 м с мансардой, фото которой представлены ниже. По жилой и общей площади такая конструкция соответствует варианту 9×9 м, но удобнее для расположения на вытянутых участках.




Фото планировки дома 10 на 10 м с мансардой: особенности конструкций
Проекты дома 10×10 с мансардой из пеноблока самые доступные по цене, по сравнению с другими материалами для строительства. Сам план с подробной документацией стоит от 15 до 25 тыс. р., а возведение дома под ключ колеблется в районе 1 500 000 – 2 400 000 р.

Покупая проект, обязательно обращайте внимание на разводку коммуникаций. Она должна включать:
- Подключение к электроэнергии, распределение проводов и по этажам.
- Водоснабжение. Если нет рядом магистрального водопровода, то возможности установки и места для забора воды на участке.
- Отопление. Каким образом будет отапливаться дом: газ, вода, твердое топливо. И где будут стоять батареи.
- . Есть ли магистраль или требуется установка септиков.
Обустройство инженерных коммуникаций Все эти нюансы продумываются на этапе составления проекта, сметы и всей необходимой документации.
Что касается распределения комнат, то оно может быть различным. Вот несколько фото-примеров планировок:




Статья
Добро пожаловать в раздел нашего каталога: готовые проекты домов с мансардой. Но прежде чем вы начнете поиск подходящего для вас проекта дома с мансардой, мы хотим вас познакомить с информацией, которая наверняка будет полезной и поможет вам сделать правильный и осознанный выбор.
Проект классического дома с мансардой ЯА 247-4

Площадь застройки: 187,10 кв.м.
Площадь общая: 247,40 кв.м.
Площадь жилая: 115,80 кв.м.
Технология строительства: газобетон.
Стоимость проекта: 30 000 руб. (АР + КР)
Стоимость материалов на строительство: 2 400 000 руб*
Именно такая компоновка и внешний облик присуще многим проектам домов с мансардой. Но есть у этого проекта одна важнейшая характеристика, которая в короткое время сделала его очень популярным среди покупателей нашей проектной документации. Не секрет, что значительное количество выделяемых и покупаемых под застройку земельных участков имеет небольшие размеры. И разместить на таком участке дополнительно к уже построенному дому еще гараж, баню или беседку, то есть те строения, без которых жизнь за городом значительно теряет в комфорте и удобстве, становится очень проблематично. Но, если вы покупаете проект дома с мансардой, гаражом и баней ЯА 247-4, то избавляетесь от всех этих хлопот
. Возведя это универсальное строение, вам не нужно будет строить на своем участке еще отдельно стоящий гараж и баню. Таким образом, построив на едином фундаменте, с общими стенами и под одной крышей эти различные объекты, вы значительно снизите бюджет строительства. У вас не будет проблем с хозяевами соседних участков по соблюдению необходимых нормативов по противопожарным и санитарным отступам от границ их участков. И еще вместо уплаты налогов на три объекта капитального строительства у вас будет единый налог на один объект недвижимости. Величина этого налога значительно меньше чем на три отдельно стоящие объекты налогообложения. Кроме этих несомненных достоинств, этот дом еще и очень вместительный. При определенных обстоятельствах в нем единовременно может проживать до 8 человек. Обратите внимание, на первом этаже, кроме гостиной, есть еще две жилые комнаты, что очень удобно, если в семье есть пожилые люди или маленькие дети. Больше всего этот проект универсального дома с жилой мансардой привлекает владельцев небольших, узких участков, так как его габариты всего: 9,600 х 11,900 м. Великолепно распланированное и практичное жилище для тех, кто умеет считать свои деньги, любит комфорт и удобства.
Детальное описание проекта ЯА 247-4 ➦
Проект дома с мансардой и гаражом ЯГ 130-3

Площадь общая: 130,30 кв.м.
Площадь жилая: 69,90 кв.м.
Высота потолков 1 этажа: 2,740 м.
Высота в мансарде: до 3,200 м.
Высота здания в коньке от уровня земли: 9,220 м.
Технология строительства: из газобетона.
Стоимость проекта:
- 31 900 руб. (АР + КР)
- 36 900 руб. (АР + КР + ИС)
Стоимость материалов на строительство: 1 312 000 руб*
Еще один вариант проекта популярнейшей серии домов и коттеджей с мансардой. Первые проекты этой серии появились в нашем каталоге еще в 2010 году, и с каждым годом их становится все больше. В этой серии есть проекты популярных домов с жилой мансардой из газобетона, поризованного кирпича, профилированного бруса. Компактные, с привлекательными фасадами, красивой и выразительной крышей, они еще имеют удобные и комфортные планировки. На первом этаже обязательно есть гостиная с камином, кухня, котельная. В этом проекте на плане 1-го этажа есть еще одна жилая комната. На мансардном этаже общий холл, три изолированные спальни, большой санузел. К основному зданию пристроен гараж для парковки одной машины. То есть, если правильно позиционировать его, то это проект дома с мансардой и гаражом.
✔На любой готовый проект
дома, коттеджа, гаража, бани или беседки, мы можем дать индивидуальную скидку
, размер которой зависит от выбранного проекта, состава заказа и сроков оплаты.
Подробности акции вы можете узнать, связавшись с нами любым удобным вам способом:
- позвоните нам,
- закажите бесплатный обратный звонок,
- напишите нам сообщение в онлайн-чате,
- пришлите письмо на нашу электронную почту.
✔ Серия ДС и ДСГ - при покупке любого проекта этих серий вы получаете в подарок проект бани ДС 34-6.
✔ Бесплатная доставка проекта в любой регион России .

Готовые проекты домов с мансардой из пеноблоков
Рассматривая различные варианты материалов для строительства зданий с мансардным этажом, можно сделать вывод, что самыми популярным является разработка проекта дома из с мансардой, фото которых легко найти в Интернете. Такое здание отличается большой скоростью возведения и меньшими затратами на стройматериалы. В отличие от деревянных конструкций, пеноблоки не имеют усадки, а по сравнению с кирпичом – намного лучше обрабатываются, позволяя создавать нестандартные строительные решения – от эркеров до башенок.


К преимуществам выбора этого материала для изготовления дома с мансардой можно отнести и небольшой вес блоков, и их повышенную морозостойкость и огнестойкость. Кроме того, пеноблоки относятся к самым экологичным видам стройматериалов и обладают высокой паропроницаемостью, что позволяет внутри здания. И построить из них дом с мансардным этажом – значит, сделать выбор в пользу снижения стоимости работ и повышения комфорта от проживания в таком жилье.
Статья по теме:
В статье рассмотрим подробнее купольные дома: проекты и цены, фото и рекомендации опытных специалистов. Полученные знания пригодятся при выборе методики, по которой будет возведено здание.
Компактный дом с мансардой: планировка 6х6
Стандартный план дома с мансардой 6 на 6 предполагает сооружение здания, рассчитанного на 3–4 человек. При этом часть жилой зоны будет располагаться в верхней части постройки, так как небольшие размеры нижней позволят разместить в ней только хозяйственный блок. К преимуществам проекта дома с мансардой 6х6 относят:
- минимальное время на изготовление здания (в пределах 1–2 месяцев, в зависимости от материала);
- экономию на оплате коммунальных услуг – отопление такой небольшой площади (30–35 кв. м на первом этаже, 15–25 кв. м – в мансарде) потребует не больше энергоресурсов, чем двух- или трёхкомнатная квартира;
- небольшие расходы на строительство – особенно, если выбираются с мансардой проекты 6х6. Хорошим вариантом будет и здание из пеноблоков.


При правильно выбранной планировке дома 6 на 6 с мансардой внутри можно разместить достаточно помещений и для комфортного проживания, и для хранения вещей. Для создания кладовой можно использовать пространство под на мансардный этаж. Кухня обычно объединяется с гостиной. А и ванная выполняются в виде одного общего блока, располагаемого на первом этаже.


Планируя размещение комнат в здании с постоянным пребыванием людей, или выбирая готовый проект дачного дома 6х6 с мансардой, стоит предусмотреть не двускатную, а ломаную крышу. Это позволит увеличить размеры верхней части постройки, превратив её из подобия чердачного помещения в зону для проживания или летнего отдыха. Дополнительно увеличить пространство поможет устройство перед домом террасы.


Планировка дома 9 на 9 с мансардой: фото, особенности
Строительство здания размером 9 на 9 метров позволяет разместить внутри намного больше комнат и зон по сравнению с компактными постройками 6 х 6. Для такой планировки дома с мансардой, фото которой часто встречаются в каталогах строительных компаний, можно предусмотреть размещение большой семьи – от 4 до 8 человек. Общая площадь комнат здания достигает 120–150 кв. м, в зависимости от типа кровли и размеров лестничного пролёта.


Типовое расположение помещений для такого дома выглядит следующим образом:
- на первом этаже находится просторная гостиная и кухня-столовая;
- на втором этаже располагают от 2 до 4 спален, балкон или терраса;
- хозяйственный блок (котельная, кладовая) устраивают на первом этаже, а санузлы делаются и в верхней, и в нижней части здания.


На первом этаже нередко делают веранду для отдыха в тёплое время года. А, благодаря большим размерам здания, на первом этаже остаётся достаточно места для . Если же жильцы дома с мансардной владеют всего одной машиной, внутри можно разместить и небольшой гараж (выделив территорию 3 х 9 м). Для двух и большего количества автомобилей гаражная постройка делается отдельно от основного здания.


Варианты планировки дома 10 на 10 с мансардой: фото


Практически все проекты дома 10х10 с мансардой из пеноблока ненамного отличаются от зданий 9 на 9. Однако за счёт увеличения общей площади на 25–35 кв. м постройка обеспечит дополнительное место ещё одному–двум жильцам. Количество спален внутри дома увеличивается – на мансардном этаже, занимающем от 50 до 80 кв. м, их может быть уже от 3 до 5.


При этом повышается и стоимость строительства, и расходы на утепление, проведение коммуникаций и кровлю. Но увеличение сметы полностью оправдывает себя по сравнению как с меньшими по размеру зданиями с мансардой, так и с двухэтажными домами.


Если места для жильцов такой постройки достаточно и на первом этаже, мансардная часть такого размера позволяет расположить домашний кинотеатр и гостевые комнаты. Отопление в этом случае не в мансарду не проводится, что позволяет пользоваться ею только в летнее время. В холодное время года это пространство служит местом для хранения одежды и других вещей – при этом часть этажа отдаётся .


Другие варианты дома с мансардой: фото проекты
Кроме самых популярных вариантов размеров зданий с мансардным этажом, можно воспользоваться десятками других. Начиная от планировки дома 8 на 10 с мансардой, фото которого можно увидеть ниже, и заканчивая проектами 9 х 12 и 10 х 12 метров. Здания большей площади редко делают с мансардным этажом – пространства внутри достаточно и без дополнительных комнат. Хотя, в отличие от компактных домов, такие постройки позволяют удобнее расположить лестничный узел, размеры которого практически не влияют на общую территорию.


Проекты больших домов с мансардными этажами требуют увеличения количества санузлов. Теперь на втором этаже обязательно должны быть отдельный туалет и ванная – и даже две, так как количество проживающих в здании людей может достигать 8–10 человек. Для повышения удобства жильцов можно предусмотреть два отдельных подъёма на мансардный этаж – и даже два входа в само здание.
Проекты домов с мансардой: фото с чертежами
Составление проектной документации перед началом строительства здания с мансардным этажом включает не только планировку комнат, но и чертежи отдельных конструкций. Особое внимание следует обратить на схемы кровли, стропильной системы и лестничного пролёта. Эти части здания будут отличаться от аналогичных элементов построек с одним и двумя этажами.
Особенности планирования лестничного пролёта
При планировании следует учитывать подходы к ней из разных частей здания. Размеры конструкции определяются периодичностью использования мансардного этажа:
- при постоянном проживании в нём людей (с наличием отопления и санузлов) выполняется из двух пролётов с площадкой посередине и обязательным устройством перил;
- для использования верхней части дома только в летнее время и небольших размерах мансарды в плане допускается сооружение небольшой винтовой (для экономии пространства) лестницы полуметровой ширины.


Для большого здания на мансардный этаж может быть две – в противоположных частях дома. Ширина конструкции может быть до 1 метра, что позволяет обеспечить даже двухстороннее перемещение. Рекомендуется располагать лестничный марш таким образом, чтобы его уклон оставался параллельным скату крыши – это позволит поставить достаточно пространства над головой во время подъёма.
Чертежи и схемы крыши
Проектная документация здания с мансардой должна включать подробное описание и схематические изображения кровли, включая её геометрическую форму, уклоны скатов и геометрических размеров. К проекту должны прилагаться сведения о теплоизоляции крыши, от качества которой зависят энергозатраты на отопление и микроклимат на площади мансарды в холодное время года. Материалы и толщину утеплителя подбирают с помощью расчётов. Для этого можно использовать специальные программы – в том числе и онлайн-приложения – но правильно рассчитать конструкцию может только специалист.
Несмотря на важность учёта толщины утеплителя, ещё более ответственным этапом является проектирование стропильной системы. Из-за того что мансарда будет использоваться для временного или постоянного проживания, конструкция крыши будет отличаться от кровли обычного дома. А процесс сооружения системы займёт намного больше времени.
Стропильная система для мансарды
Для ломаной крыши (чаще всего выбираемой для домов с мансардой) стропила должны выдерживать серьёзную нагрузку – ветровую и снеговую. Для её учёта используют специальные формулы и таблицы.

Таблица для учёта ветровой нагрузки А процесс сооружения состоит из следующих этапов:- Установка по краям здания двух первых стоек, на которые будет опираться система;
- Проверка вертикальности расположения стоек и привязывание к ним шпагата, который будет играть роль ориентира для других опор;
- Установка остальных стоек;
- Монтаж прогонов и их пристыковка к стойкам;
- Установка нижнего ряда стропил, согласно чертежам здания. Для этого используются наклонные стропильные ноги;
- Устройство верхней части с помощью висячих стропильных конструкций небольшого размера.


Стропильные фермы изготавливаются по специальному шаблону и усиливаются подкосами. А для того чтобы избежать провисания потолочных балок, которые должны постоянно выдерживать большую нагрузку, их соединяют со стропилами с помощью подвесов. Заключительным этапом является сооружение обрешётки, поверх которой укладывается кровельное покрытие.
Разработка проектов требует особого отношения к сооружения крыши. Из-за того что уклон ломаной конструкции слишком большой, продолжить кровлю в направлении не получится. А изменение угла крыши может привести к ухудшению эстетических характеристик здания. Поэтому гараж может перекрываться одной кровлей только для двускатного варианта. Для более распространённого варианта с ломаной крышей гараж накрывается отдельно.


Статья
Для начала стоит разобраться, что такое мансарда и чем она отличается от чердака. Оба этих помещения в доме располагаются под крышей. Многие их часто путают, так как не видят разницы. Мансардный этаж - последний в доме, он располагается прямо под крышей, но рассчитан на проживание людей в любое время года. Его обязательно утепляют, снабжают электричеством, водой и отоплением. Фасады чердака и мансарды полностью или частично формируются крышей. Главное отличие помещений от второго или третьего этажа в коттедже или загородном домике - это высота стен. Под ней подразумевают расстояние от пола до пересечения фасада с крышей. Она не должна превышать 1,5 м, согласно условиям, прописанным в СНиПе. Если высота чуть больше, то это уже полноценный этаж.
Чердак - холодное, нежилое помещение. Его можно оборудовать под летний отдых, но зимовать в такой комнате не представляется возможным. Обычно на чердаках обустраивают хранилища ненужных вещей. Однако практика складирования хлама постепенно сходит на нет. Если же помещение предназначено для расположения коммуникаций, котельной, инженерного оборудования, то чердак называют техническим этажом. Они чаще встречаются в многоквартирных домах. Еще одно важное отличие мансарды от чердака - наличие больших окон, иногда даже встроенных в кровлю. Для нежилых помещений освещение не имеет большого значения. Проекты домов с мансардой можно приобрести в уже готовом виде в конструкторских бюро. Единственный способ получить бесплатный план - подготовить его своими руками, что потребует определенного запаса знаний. Поговорим о конструктивных особенностях мансардных этажей, вариантах их обустройства и популярных стилях, которые воплощают под крышами домов.
Особенности мансардных этажей
Проект дома с мансардой - идеальный вариант для тех, кто хочет использовать площадь строения по максимуму. В этом отношении дополнительное жилое помещение сходно с цокольным этажом. Раньше подвалы использовали исключительно для хранения хлама и размещения оборудования. Сейчас в цоколях обустраивают игровые комнаты, домашние кинозалы, гаражи, сауны или прачечные (как в типовых американских домах). Без плана-чертежа соорудить мансарду невозможно. Со строительными работами действительно может справиться каждый, хотя и здесь часто обращаются к компаниям, которые практикуют возведение объектов «под ключ». А вот правильно сделать расчеты нагрузок на фундамент, продумать расположение всех элементов конструкции, подсчитать расход материалов, может только профессионал, за плечами которого опыт и багаж специализированных познаний.
Перед строительством подготавливают несколько эскизных набросков - в разрезе и с разных точек обзора, и при этом указывают масштаб. На чертеже обязательно помечают расположение оконных проемов, лестницы-входа, коммуникативных линий, обозначают форму и указывают размеры. Самая популярная конфигурация среди мансард - прямоугольная или квадратная. Простой задача кажется только на словах. Приступая к делу, обыватель теряется и даже не знает, с чего начать. Мансарда привлекает обилием света и свежего воздуха. Ее наружная «коробка» включает две составляющие:
- Вертикальные (фронтонные) стенки. Их обычно выполняют из того же материала, что и фасад дома, так как они являются его логическим продолжением.
- Наклонная стена (боковая). Она «начинается» с вертикальной поверхности (аттиковая стена), а дальше ее каркасом служит стропильная система крыши. В роли наружной обшивки потолка выступает кровля. Чтобы увеличить площадь мансарды, меняют угол наклона крыши и увеличивают высоту аттиковых стен.

В деревянных домиках-срубах вертикальные стены сооружают из древесины. Если постройка кирпичная, то и для мансарды используют кирпич. Иногда вертикальные стенки обшивают декоративными материалами под стать остальному фасаду. Это необходимо в случаях, если требуется обновить экстерьер, чтобы вписать его в ландшафтный дизайн дачного участка, или когда само строение имеет неказистый внешний вид. К примеру, его возводили из керамзитобетонных, газосиликатных, керамзитных, шлакоблоков или газоблоков. Такие материалы имеют непривлекательный вид и обязательно маскируются под слоем финишной отделки. Для этих целей используют керамогранит, сайдинг, декоративные панели «под кирпич» или камень. Иногда снаружи стены отделывают деревом. Материал смотрится очень красиво, но при этом менее практичен, чем более долговечные аналоги. Обязательным условием для обустройства мансарды становится утепление. Частично задача сохранения тепла в помещении возлагается на декоративную обшивку, которая защищает стены снаружи. Внутри их закрывают тепло- и пароизоляцией, между слоями которых располагают минвату, пенопласт. Затем проводят коммуникации и осуществляют финишную отделку. Далее в дело вступает дизайн и распределение функциональных зон на мансардном этаже, размещение мебели, декорирование.

Встречается еще такое понятие, как полумансарда. Это изначально жилой этаж, который совмещают с крышей. Конструкция имеет выразительную архитектуру и оригинальный внешний вид. Полумансардный этаж тоже используется для постоянного проживания. Высота его стен не превышает 0,8 м.

Преимущества и недостатки домов с мансардой
Мансардный этаж имеет как ряд преимуществ, так и небольшой перечень недостатков. К плюсам относят следующие аспекты:
- Если обустройство мансарды изначально не входило в планы при строительстве дома, то за счет нее жилую площадь можно приумножить даже не покидая пределов дачи или коттеджа. Стройка будет идти своим ходом, а остальные комнаты все так же могут эксплуатироваться, то есть возведение проводится независимо. Такая практика встречается довольно часто, когда семья растет, а жилье со временем становится слишком тесным. В этом, пожалуй, заключается главное преимущество дополнительного полуэтажа.
- Грамотно обустроенная мансарда поможет снизить теплопотери здания. Это приведет к снижению нагрузок на отопительную систему и более экономному расходу энергии.
- Оригинальная архитектоника потолка идеально подходит к необычным современным направлениям, где конфигурация - основа композиции.
- Лучшая инсоляция. Так как мансарда априори выше любой другой комнаты в доме, света она получает больше. Если окна встроены в кровлю, то солнечные лучи попадают в помещение напрямую даже в полдень.
- Мансарда открывает широкие возможности по планированию помещений. Изначально этаж не имеет внутренних стен, поэтому решение о размещении комнат, их размерах (ширине и длине) принимают только владельцы дома. Планировка не требует сноса перегородок или внесения существенных изменений. Можно создавать зонирование буквально с «чистого листа».
- Хорошая вентиляция. Высота, на которой располагается мансарда, способствует быстрому воздухообмену.


К недостаткам относят следующие факторы:
- Необходимость в кондиционировании жарким летом. Кровля очень быстро нагревается и отдает тепло мансарде, расположенной ближе остальных помещений. К сожалению, в жаркую погоду при отсутствии кондиционера здесь будет самая настоящая «парная», как в бане.
- Некоторые психологи полагают, что, не имея традиционного «ровного» потолка над головой многие люди могут испытывать дискомфорт. Сложная архитектура ломаной крыши выглядит очень необычно и красиво, однако, излишнее нагромождение деталей действительно может со временем вызывать раздражение. Конфигурацию легко подправить с помощью особой отделки, декора, цветового решения.
- Дороговизна специальных мансардных окон, которые придется покупать для просторных помещений, где одних проемов на фронтонах будет недостаточно.
- При ошибках в строительстве, отделке, теплоизоляции можно получить «холодную» мансарду, которую в зиму не спасет даже самый мощный отопительный котел.
- Скопление снега в зимнюю пору на стеклах мансардных окон, что создаст препятствие для попадания света в помещение.
- Никакой вид шумоизоляции полностью не исключит дождевые «шорохи» - звуки столкновения капель с кровлей. Причем не имеет значения, какой тип покрытия выбран (мягкий или жесткий). Хотя психологи считают, что шум воды обладает лечебным, успокаивающим эффектом, иногда это может сильно раздражать.

Кстати, еще одним достоинством можно считать простоту при размещении камина или печки. Печное отопление тоже можно рассмотреть в качестве варианта. Так получится сэкономить на потреблении других ресурсов (газ, электроэнергия) и создать комфортные условия на мансарде в зимнее время с помощью «живого огня» от угля или дров.
Устройство мансардного этажа
Чтобы грамотно составить план, необходимо учитывать ряд следующих факторов:
- Жилая площадь. Ее размеры напрямую зависят от типа крыши. Некоторые разновидности создают слишком много зон, которые невозможно использовать целесообразно. Самым экономным вариантом считается вальмовая крыша. Ее стропильная система в отличие от двухскатной позволяет использовать каждый метр мансарды без «глухих» зон.
- Бюджет. Если он очень скромный, то придется довольствоваться односкатной крышей, так как она относится к самым дешевым вариантам.
- Снеговая и ветровая нагрузка. Осадки должны свободно сползать с крыши, а не накапливаться на ней. В данном случае значение имеет уклон. Если его рассчитать неверно, то осадки создадут дополнительную нагрузку на кровлю, которую та может не выдержать.
- Выбор подходящего материала для стропильной системы. Многие ошибочно полагают, что древесина попадает под табу. На самом деле СНиП допускает использование дерева, если оно было предварительно обработано должным образом. Здесь также соблюдается условие относительно максимальной высоты здания - не более 75 м, то есть повышенная этажность. Конечно, для частных домовладений такие цифры считаются заоблачными. В среднем даже на каждый трехэтажный дом приходится более двадцати обычных одноэтажек.
- Состояние фундамента и фасада. Здесь учитывают не только материал, из которого строился дом, но и сроки его эксплуатации, дополнительные нагрузки, общий вид (наличие трещин или иных повреждений). Исходя из этого, выбирают определенную стропильную систему и материал для кровли.
- Нагрузки на стены дома и фундамент. Некоторые виды крыш (односкатные) распределяют нагрузки неравномерно, то есть одну сторону здания, возможно, придется дополнительно укрепить. Без знаний в этой области легко совершить ошибку, которая грозит обернуться обрушением.



Все эти нюансы обязательно учитываются при проектировании мансарды. Роскошно смотрятся дополнительные этажи с эркерами или террасами. Во втором случае у домашних есть выход на открытый воздух с видом на двор, надежно защищенный навесом. Такие веранды иногда застекляют. Эркерные конструкции чаще всего по форме повторяют аналогичные выступы на нижних этажах.
Стропильные фермы
Стропильная ферма - стержневая система, на которой держится крыша. По сути, это «костяк», скелет мансарды, на который «надеваются» слои кровельной обшивки, теплоизоляции, коммуникативных линий, внутренней отделки. Стропильная ферма состоит из ряда компонентов, грамотное комбинирование которых позволяет равномерно распределять нагрузки на несущие стены дома:
- Мауэрлат. Он представляет собой бревно или брус, который укладывают на несущую стену. По сути, это «фундамент» стропильной фермы.
- Коньковые и боковые прогоны. Это балки, которые располагаются горизонтально. Первую размещают прямо под коньком, а остальные чуть ниже, перпендикулярно стропильным «ногам».
- Подкосы, распорки, диагональные связи - система коммуникативных элементов.
- Наслонные и висячие стропила.

Так как нагрузки на мансардную крышу довольно большие, стропильная ферма должна иметь запас прочности. Его обеспечивает качественное соединение между отдельными компонентами системы. Наиболее часто для этих целей используют болты, шурупы, сварку или тип «паз-гребень». Схему каркаса стропильной фермы выбирают в зависимости от типа крыши, которой накроют мансардный этаж. Также учитывают расстояние между наружными несущими стенами. Если оно не превышает значение 6,5 м, то выбирают наслонные стропила. В иных случаях прибегают к висячим опорам. Их монтируют на затяжку и на мауэрлат. При необходимости конструкцию усиливают дополнительными связующими звеньями.
Конструкция крыш
Форма мансарды напрямую зависит от разновидности крыши. Сами дополнительные этажи могут быть прямоугольными, ломанными, треугольными, асимметричными. Мансарды могут располагаться над всем домом или только над его частью. Крыши, в зависимости от формы классифицируют на следующие типы:
- Односкатные.
- Двускатные.
- Трехскатные.
- Купольные (конические, пирамидальные).
- Четырехскатные.

Трехскатные и купольные на мансардах встречаются очень редко из-за сложной архитектуры. Первые были популярны еще в царской России, когда изысканное оформление дома было показателем достатка семьи. Купольные представляют собой очень сложную конструкцию с не менее «запутанной» стропильной фермой. Под круглыми крышами из прозрачных материалов раньше прятали оранжереи в богатых особняках. Если судить по изысканности архитектуры, то такая крыша - грандиозное сооружение, впечатляющее и приковывающее взгляды. С материальной точки зрения, подобное строительство обойдется очень дорого, потому и не всегда является оправданным. Четырехскатные классифицируют на четыре подвида:
- Вальмовые.
- Шатровые.
- Полувальмовые
- Вальмово-фронтонные.

В шатровых конек полностью отсутствует. Мансарды под крышами трех оставшихся видов имеют ломаную архитектонику, которая выражена не так ярко, как в двухскатных крышах. По этой причине этот нюанс можно отнести к преимуществам, а не к недостаткам.
Односкатная
Конструкция односкатной крыши считается самой простой. Кровля фиксируется на несущих стенах под наклоном. Такая архитектура крыши лаконична и даже граничит с примитивизмом. Для односкатных вариантов большое значение имеет угол наклона. Если его рассчитать неправильно, то осадки будут накапливаться, а нагрузка на кровлю увеличиваться. Мансарды под односкатными крышами обустраивают не так уж часто. Помещение будет иметь асимметричную форму из-за разной высоты противоположных стен. Зато в односкатную крышу легко встраиваются окна, которые смотрятся в одном ряду очень аккуратно и последовательно.

Двускатная
Двускатные или щипцовые крыши довольно просты в монтаже и считаются классическим вариантом для обустройства мансардных этажей. Как становится понятно из названия, такие конструкции имеют два ската, которые вверху пересекаются и упираются в конек. Обе плоскости «смотрят» в разные стороны. Двускатные крыши классифицируют на три подвида:
- Симметричные. Скаты расходятся под одинаковыми углами и являются зеркальным отражением друг друга. Фронтон имеет простую конфигурацию равнобедренного треугольника, а конек располагается по центру строения.
- Несимметричные. Конек таких крыш смещен относительно условного центра дома. Скаты имеют равную длину. Иногда их еще называют: крыши «со смещенным коньком».
- С ломаными скатами. Этот тип крыш был специально придуман для мансард и чердаков. Ломаные скаты позволяют увеличивать площадь подкровельного пространства.

Наиболее популярный вариант двускатной крыши - «выпуклая» с ломаными скатами. Конек располагается строго по центру, а фронтон имеет форму неправильного, но симметричного пятиугольника.
Выбор кровли
Ассортимент кровельных материалов поистине поражает. Если раньше обходились традиционным шифером, уложенным на рубероид, то сейчас у обывателя глаза разбегаются при виде широкого выбора. В зависимости от жесткости материалы классифицируют на два типа:
- Мягкие (битумная черепица).
- Жесткие (шифер, металлочерепица).

При выборе материала также обращают внимание на конфигурацию крыши. К сложным, ломаным конструкциям не каждый тип кровли подойдет. Самым долговечным и красивым вариантом станет натуральная черепица, которую изготавливают из глины путем обжига. Материал обойдется очень дорого, но срок службы - более 150 лет - полностью окупает стоимость. Второе место по популярности делят асбестоцементный шифер и металлочерепица. Первый представляет собой смесь цементной основы с армирующими волокнами асбеста. Хотя за последние годы появилось много конкурентов, он по-прежнему занимает лидирующие позиции на рынке. Шифер может быть плоским или волнистым. Его классический цвет - серый, но некоторые производители окрашивают материал в яркие оттенки. В среднем срок службы шифера составляет 30 лет. Металлочерепица - имитация одноименного керамического материала, выполненная из оцинкованной стали, который покрывают защитной полимерной пленкой с обеих сторон. Текстура и расцветка материала детально имитирует оригинал. Средний срок службы металлочерепицы составляет 15 лет. Она пожаробезопасна, проста в монтаже, прочна и недорого стоит. Чуть менее популярны ондулин, профнастил (гофрированные стальные листы) и штучная композитная, сланцевая, битумная, цементно-песчаная черепица. Для крыш сложной конфигурации лучше использовать мягкий кровельный материал.
Окна и способы их открывания
На мансардных этажах используют как обычные вертикальные окна (встраивают во фронтоны), так и особые наклонные. Их располагают на крыше. Окна так и называют «мансардные». Они в буквальном смысле этого слова смотрят «на небо» и дарят непередаваемые ощущения во время дождя или звездными ночами, когда можно засыпать, любуясь великолепным пейзажем. Различают их по типам открывания. Привычный поворотный или поворотно-откидной механизм в мансардных окнах не встречается. Исключением станут только «люки» в крыше. Из-за специфики расположения (под наклоном) чаще такие стеклопакеты оснащены только откидными или раздвижными системами. Роскошно смотрятся на мансардах панорамные окна, расположенные на фронтонах. Встречаются и миниатюрные «балконы», оснащенные откидным механизмом. Они открывают доступ к небольшому крыльцу с ограждением, своеобразной мини-террасе.


Одноэтажные дома с мансардой
Проблема дефицита пространства чаще беспокоит владельцев одноэтажных домов. Если земельный участок небольшой и не позволяет увеличивать жилплощадь в ширину, то придется обратить свой взгляд ввысь. Полноценный второй этаж - удовольствие не из дешевых. Придется значительно укреплять конструкцию и кардинально ее перестраивать. Мансарду же можно обустроить на уже имеющемся чердаке, проведя работы по ремонту, утеплению и отделке. Что касается стоимости, то реорганизовать готовое пространство значительно дешевле, чем построить новое.

Двухэтажные дома с мансардой
В двухэтажных домах мансарда станет дополнительной нагрузкой на конструкцию. При ее обустройстве лучше использовать немассивную мебель с малым весом. При необходимости ее легко переставить на новое место или заменить на другую. Как вариант, можно рассмотреть плетеные кресла и стулья, пластиковые столики, гардеробные вместо полноценных шкафов или даже садовую мебель. Весь этаж разделять на комнаты или зоны рекомендуют с помощью легких перегородок из гипсокартона.

Варианты обустройства комнат
На мансардном этаже можно обустраивать абсолютно любые помещения: спальни, гостиные, детские и игровые комнаты. Если сюда проведено водоснабжение, то допускается размещение санузла или кухни. На небольших мансардах логично расположить всего одну просторную комнату и провести ее зонирование. Если этаж узкий, то от лестницы-входа делают два дверных проема в разные помещения, которые упираются в противоположные фронтоны. Чаще всего мансарды оформляют под спальни. Дефицит пространства обычно вызван увеличением семьи. Мансарда - великолепный вариант для обустройства обособленных полноценных детских комнат. Это позволит подарить ребенку личное пространство и при этом не жертвовать уже имеющимися функциональными комнатами.

Популярные стилистические направления
В дизайне мансардных этажей придерживаются принципов лаконизма и легкости. Интерьер должен быть простым и ненавязчивым. Стилистическое направление обязательно подчеркивает неординарную архитектонику потолка, которая так часто встречается на мансардных этажах и превращает асимметрию в достоинство, а не недостаток. Так как нежелательно использование массивной мебели и обилия декора, то классику во всех ее проявлениях следует исключить. Чаще всего дизайнеры практикуют применение следующих стилей:
- Шале. Альпийское направление базируется на использовании дерева. Массив можно заменить на тонкие листы шпона в отделке. Они будут гармонировать с брусом, из которого построен дом. Необычную архитектуру потолка дополняют декоративными балками и бревнами. Мебели используют минимум: плетеные кресла, стулья, кровать с деревянным каркасом. Из декора выбирают мягкие шкуры для пола, оленьи рога на стены и стильные светильники в металлической оправе, на цепях подвешенные к потолочным балкам.
- Минимализм. Этот стиль легко адаптируется как к маленьким пространствам, так и к просторным комнатам. Вся мебель размещается компактно. Это направление наполняет гармония пространства, света и цвета. Идеален подобный вариант для эконом-ремонта. В цветовой гамме превалирует белый и серый. Декор практически не используют. Из мебели оставляют только низенький кофейный столик, группу стульев, компактный угловой шкаф-гардеробную и кровать.
- Лаконичный русский этнический стиль. Колоритное направление, которое ассоциируется с теремами в дремучих сибирских лесах. Внутреннее убранство не поражает роскошью: используется простая мебель, изготовленная кустарным способом с грубыми, плохо обработанными поверхностями. В интерьере превалирует доступное дерево - материал типичный для русских деревень. В цветовой палитре используют все оттенки коричневого: от темного шоколада и до желтого. Декорируют помещение домоткаными дорожками, расшитыми занавесками, группами расписанной вручную посуды на подставках. Если на мансардном этаже имеется камин, то его стилизуют под старинную русскую печь и белят.
- Прованс. Это один из подвидов деревенского стиля. В помещении тоже превалируют деревянные поверхности. Мебель выбирают из старых «бабушкиных» гарнитуров, которые заново окрашивают, чтобы придать более респектабельный вид. Лучшим декором станут живые цветы в горшках и фарфоровых вазах. Оживить помещение можно с помощью мелкой скульптуры, массивных канделябров, занавесок в кокетливый цветочек и группы мягких подушек на диване или кровати. В цветовой палитре превалирует белый и пастельные тона.

Также при обустройстве мансарды используют легкий японский стиль, лаконичный скандинавский и высокотехнологичный хай тек. Если постройка сооружена из кирпича, то к таким стенам подойдет лофт. Их даже не придется дополнительно отделывать. Голая кирпичная кладка станет частью интерьера.
Заключение
Мансарды - удел не только частных домов. В многоэтажных зданиях часто продают квартиры, расположенные прямо под крышей. С малогабаритным жильем они обычно не имеют ничего общего, поражая большими пространствами. В таких квартирах обустраивают студии и мастерские. Однако настоящий уют благоустроенного чердака в частном доме не сравнится ни с чем. Мансарда - прекрасный вариант для больших семей с ограниченным бюджетом.

